Projects
About Me
Contact
Projects
About Me
Contact
Jessica Doan–Exhibition Design

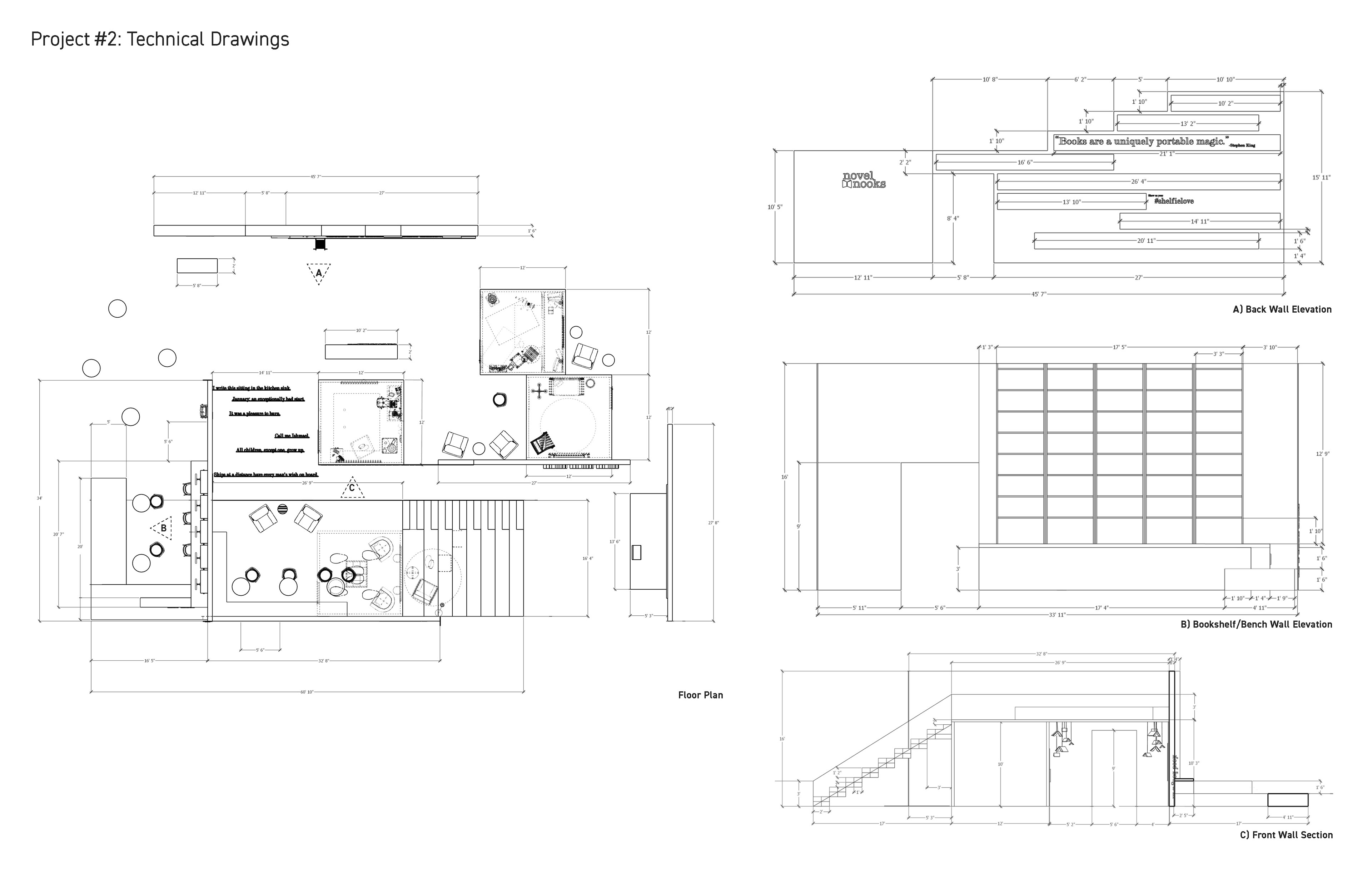
Novel Nooks: Temporary Exhibition and Festival

A hypothetical traveling festival for book lovers that supplies both communal experiences and high-detailed immersive rooms for solo reading.

You may also like

Saving Sound Town: Children's Museum Experience
2026
Brand Analysis and Placemaking Project: Waterloo
2026
Foods that Matter: Blue Cheese Pop-Up Exhibition
2026
Group Animal Branding Project: The Mantis Shrimp
2026
Environmental Short Film Assignment: Trending Tides
2026
High-Class Tarts: An Experiential Cafe
2026
Content Development Project: Time Banking
2026
↑Back to Top
Powered by Adobe Portfolio